CONNECTA

Centro de Inovação e Conexão de Blumenau
Ateliê V - Projeto Integrado de Arquitetura: Redes e Conexões com a Comunidade
Localização: Rua São Paulo, 3320 - Itoupava Seca - Blumenau
Área total construida: 3.078,12 m²
Alunos: Alice Gnand, Bernardo Wust e Isabel Speer
Professores: Christian Krambeck, Ketlin Montanari e Karol Carminatti
CONTEXTO E TEMA
O projeto do CICB – Centro de Inovação e Conexão de Blumenau – surge para atender ao crescimento do ecossistema de inovação da cidade e responder aos desafios enfrentados por profissionais, empreendedores e estudantes que utilizam o espaço atual. Entre os principais entraves estão a falta de estrutura para startups, a escassez de áreas para eventos e networking, e a necessidade de um ambiente mais moderno e adaptável.
Implantado entre o CIB e o Campus 2 da FURB, o novo edifício tem como missão conectar pessoas, ideias e espaços urbanos, promovendo uma integração ativa entre universidades, empresas e a comunidade. A proposta arquitetônica prioriza a harmonia com o entorno e cria ambientes acessíveis, sustentáveis e inspiradores, que estimulem a criatividade, a troca de experiências e o desenvolvimento de soluções inovadoras para fortalecer o cenário tecnológico de Blumenau.



CONCEITO
O CICB surge como uma resposta ao crescimento do ecossistema de inovação de Blumenau, ampliando o potencial do CIB atual e criando novas oportunidades de convivência, colaboração e aprendizado. Concebido de forma integrada ao entorno, o projeto propõe uma arquitetura fluida e acolhedora, que conecta pessoas, ideias e saberes.
Pensado para todas as idades, o centro contempla usos diversos, com ambientes acessíveis e inclusivos que atendem desde crianças até idosos. A proposta valoriza os fluxos entre a FURB e o CIB, incentivando a troca entre universidade, comunidade e mercado, por meio de espaços que estimulam o bem-estar, a inovação e o compartilhamento de experiências.
A presença da natureza é elemento central no projeto — não apenas como paisagem, mas como parte ativa do espaço construído. Áreas verdes, vegetação remanescente e estratégias de conforto ambiental são integradas à arquitetura, reforçando a relação entre cidade, meio ambiente e qualidade de vida.
Mais do que uma edificação, o CICB se consolida como um polo urbano vivo, onde sustentabilidade e criatividade se encontram para fortalecer a identidade de Blumenau como cidade conectada, humana e preparada para o futuro.


DIRETRIZES
.png)
O projeto segue princípios de desenvolvimento sustentável e inclusão social. Nesse contexto, ele se alinha aos Objetivos de Desenvolvimento Sustentável (ODS), um conjunto de 17 metas globais definidas pela Assembleia Geral das Nações Unidas.
Os objetivos contemplados na proposta são:
LUGAR
O Centro de Inovação e Conexão 2 está situado em uma área estratégica da cidade de Blumenau, entre dois polos fundamentais para o desenvolvimento regional: o Centro de Inovação de Blumenau (CIB) e o Campus II da FURB. Essa localização é não apenas geograficamente privilegiada, mas também simbolicamente potente — o projeto nasce como um elo entre ensino, tecnologia e empreendedorismo, funcionando como uma extensão natural do CIB.
A região carrega um rico legado histórico. Próximo ao terreno do projeto está a Praça Hercílio Luz, criada em memória do antigo Porto Fluvial de Blumenau. Esse porto foi essencial entre os séculos XIX e XX, recebendo imigrantes e mercadorias que impulsionaram o crescimento do Vale do Itajaí. Hoje, a praça revitalizada preserva essa herança com espaços culturais e de lazer.
O entorno também abriga construções emblemáticas, como o Casarão Salinger e estruturas da antiga Estrada de Ferro Santa Catarina, hoje incorporadas ao Campus II da FURB. Esses elementos dialogam com o presente e reforçam a vocação da cidade para a inovação, a produção de conhecimento e a valorização do patrimônio.
Inaugurado em 2020, o CIB já conta com mais de 80% de ocupação e abriga empresas, startups e instituições como o Blusoft e a Secretaria de Desenvolvimento Econômico. Gerido pelo Instituto Gene em parceria com a FURB, o CIB tem como missão impulsionar o ecossistema de inovação local.
É nesse contexto que se insere o Centro de Inovação e Conexão 2: como uma ponte física e simbólica entre universidade e mercado. O projeto dialoga diretamente com o recém-estruturado Distrito de Inovação de Blumenau — uma zona voltada ao desenvolvimento de tecnologias urbanas, cidades inteligentes, 5G, Internet das Coisas e soluções sustentáveis. Com mais de 1,7 milhão de metros quadrados, o distrito reúne ensino, pesquisa, serviços e empresas, funcionando como um verdadeiro “círculo virtuoso” de inovação.
O Centro de Inovação e Conexão 2 propõe-se a fortalecer essa rede de conexões, ampliando a capacidade de integração, colaboração e geração de oportunidades. Ao unir passado e futuro, tradição e vanguarda, o projeto reafirma o papel de Blumenau como referência em inovação no Brasil.

SITUAÇÃO ATUAL DO TERRENO
O terreno destinado ao Centro de Inovação e Conexão fica ao lado do CIB existente e atualmente apresenta uma área com bastante vegetação, composta por árvores de médio porte e uma cobertura natural que tomou conta do espaço ao longo dos anos. Além disso, o local abriga ruínas de construções históricas importantes para a cidade, como a antiga Fábrica da Manteiga, a Casa Zadrozny e a Casa Salinger. Essas estruturas estão em estado de deterioração, mas ainda são visíveis e carregam um valor histórico e cultural relevante. Hoje, o terreno apresenta um aspecto de abandono, mas ao mesmo tempo oferece potencial para uma intervenção que valorize sua memória e promova uma nova dinâmica urbana e social para a região.

.jpeg)


ENTORNO E USOS
O terreno está localizado em uma área estratégica da Rua São Paulo, entre o Centro de Inovação Blumenau (CIB) e o Campus 2 da FURB. De um lado, o CIB se destaca com arquitetura contemporânea e uso voltado à inovação, abrigando startups, empresas e espaços colaborativos. Do outro, o Campus 2 da FURB apresenta edificações institucionais de caráter educacional, com áreas abertas e infraestrutura voltada à mobilidade sustentável.
O terreno, atualmente murado e subutilizado, possui leve declive e vegetação remanescente. O entorno é marcado por intenso fluxo de pessoas, ciclistas e veículos, reforçando a necessidade de um projeto que promova integração, acessibilidade e espaços de convivência. Inserido no Distrito de Inovação de Blumenau, o local representa uma oportunidade para criar um edifício que conecte educação, tecnologia e comunidade de forma sustentável e dinâmica.
CASA SALINGER
Propomos a requalificação da Casa Salinger, ao lado do Campus 2 da FURB, com a criação de um restaurante que preserve suas características arquitetônicas originais e adapte os espaços internos à nova função. A proposta busca transformar o local em um ponto de encontro e convivência, aproximando a comunidade acadêmica, moradores e visitantes, além de valorizar o patrimônio histórico da cidade.


FÁBRICA DA MANTEIGA
Propomos transformar a Ruína da Fábrica da Manteiga, atrás da Casa Salinger, em um coworking integrado ao projeto principal. A proposta preserva as estruturas remanescentes, valorizando a memória histórica, e incorpora elementos arquitetônicos contemporâneos para promover criatividade, interação e a integração entre passado, presente e inovação.


CASA ZADROZNY
Propomos transformar a Casa Zadrozny, em frente ao CIB, em um museu que valorize a história e a cultura local. A intervenção preserva a arquitetura original, com acréscimos contemporâneos para funcionalidade e conforto, criando um espaço que conecta passado e presente e valoriza o patrimônio cultural da região.
.png)
.png)

PROGRAMA E ORGANIZAÇÃO

O projeto propõe um edifício multifuncional, com foco em trabalho colaborativo, inovação, bem-estar e integração com a natureza. O programa inclui espaços de coworking (mesas compartilhadas e cabines individuais), salas de reunião de diferentes tamanhos, auditórios, escritórios privativos, FabLab (no Campus 2 da FURB) e áreas de descanso com pufes, redes e espaços de descompressão.
Também estão previstos ambientes de alimentação como restaurantes com opções saudáveis, cafeterias voltadas ao networking, cozinha compartilhada para eventos e startups de food tech, além de áreas externas com mesas integradas à natureza.
O projeto valoriza o contato com o meio ambiente, incluindo trilhas ecológicas, pista de corrida e caminhada, praças sombreadas, decks, jardins sensoriais, arquibancadas e estratégias para a fauna local.
A infraestrutura contempla bicicletário, estacionamento sustentável com vagas para carros elétricos e áreas de apoio como depósitos e manutenção.
A proposta arquitetônica une tecnologia e natureza, com linguagem contemporânea inspirada na estética paramétrica e princípios da eco-arquitetura, visando um edifício sustentável e de baixo impacto ambiental.
SETORIZAÇÃO
NÚCLEO CENTRAL
O núcleo central (ou "core") é uma solução arquitetônica muito utilizada em edifícios comerciais, institucionais e corporativos. Trata-se de um espaço onde são concentrados os principais elementos de infraestrutura do edifício, como banheiros, escadas, elevadores e áreas técnicas (shaft, dutos e instalações). Essa configuração tem como objetivo otimizar a circulação vertical, facilitar a manutenção das instalações, garantir a segurança das rotas de fuga e reduzir os custos com infraestrutura, ao centralizar redes hidráulicas, elétricas e de emergência.
Seguindo a nossa diretriz de um térreo aberto, surgiu a proposta de desenvolver um núcleo central no projeto, concentrando todos esses elementos essenciais em um único bloco. Essa estratégia permitiu reduzir significativamente a necessidade de paredes e divisórias, criando um espaço mais amplo, integrado e com maior permeabilidade visual. Além de favorecer a fluidez da circulação e o aproveitamento da iluminação natural, o núcleo central também organiza de forma eficiente a circulação vertical e as instalações prediais, garantindo a funcionalidade, a segurança e o conforto dos usuários.
PROJETO
LOCALIZAÇÃO, IMPLANTAÇÃO, FLUXOS E ESTUDOS
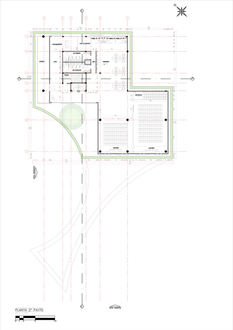
PLANTAS BAIXAS
QUADROS DE ÁREAS





MOODBOARD
_edited.jpg)
O projeto traz uma paleta neutra e equilibrada nos interiores, com tons de off-white, cinza claro, bege areia e madeira natural clara, criando uma atmosfera de leveza, acolhimento e contemporaneidade. Concreto aparente e metal black reforçam a linguagem tecnológica e moderna, enquanto o vidro translúcido, o linho misto e o courino fosco trazem transparência, textura e conforto visual.
Na área externa, o concreto e o ferro black garantem robustez e contraste, equilibrados pela madeira Taurai, que aquece e humaniza a arquitetura. A vegetação, com espécies como Palmeira Ráfis, Costela-de-Adão, Espada-de-São-Jorge e forrações verdes, é usada de forma estratégica, promovendo integração com a natureza.
O conjunto de materiais e elementos busca transmitir uma atmosfera funcional, tecnológica e humana, ideal para espaços de inovação, aprendizado e convivência criativa.
GALERIA DE FOTOS - INTERNO E EXTERNO
CONCLUSÃO
De maneira geral, o Centro de Inovação e Conexão, ao lado do CIB, representa uma importante oportunidade para fortalecer o crescimento da cidade. O projeto cria um ambiente que aproxima pessoas, ideias e oportunidades, estimulando a colaboração e a troca constante de conhecimento. Ao unir inovação e conexão, o centro se torna um ponto estratégico para o desenvolvimento sustentável da comunidade, promovendo relações mais próximas e fortalecendo o ecossistema local. Dessa forma, o projeto contribui para construir uma cidade mais integrada, criativa e preparada para os desafios do futuro.
Alunos: Alice Gnand, Bernardo Wust e Isabel Speer
.png)















































